发布时间:2021-06-02 08:41
铝板幕墙(Aluminum Panel Curtain Wall)
一、简介
铝板幕墙是建筑外立面装饰装修工程的重要组成部分,以铝合金板为核心装饰面板,通过龙骨系统与建筑主体结构连接,形成兼具装饰性、实用性与耐久性的外围护结构。其核心构成包括面板系统(单层铝单板、复合铝单板等)、龙骨系统(主龙骨、次龙骨)、连接系统(预埋件、连接件)及辅助系统(保温层、密封胶、防水配件等)。 按面板材质及结构,可分为单层铝板幕墙、铝塑复合板幕墙、蜂窝铝板幕墙;按安装方式,可分为干挂式铝板幕墙、湿贴式铝板幕墙(较少用于外墙)。该幕墙形式具有重量轻(相较于石材幕墙)、造型灵活(可加工为平面、曲面等异形形态)、耐候性强(表面氟碳喷涂等处理可抵抗风雨、紫外线侵蚀)、维护便捷等优势,广泛应用于商业综合体、办公楼、展览馆等各类公共建筑及高端住宅的外立面装饰。
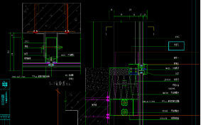
二、图片

图1 铝板幕墙整体外观图 图2 铝板幕墙节点构造
三、核心构件及技术参数
铝单板面板:
材质:常用 3003-H24、5005-H14 等系列铝合金,抗拉强度≥110MPa,屈服强度≥80MPa;
厚度:常规部位 3-4mm,异形及受力较大部位 4-6mm;
表面处理:氟碳喷涂(三涂两烤),涂层厚度≥40μm,耐候性≥15 年;或静电粉末喷涂,涂层厚度≥60μm,适用于室内及非暴晒环境。
龙骨系统:
主龙骨:采用热镀锌方管,规格常用 120×60×3mm、100×50×3mm,镀锌层厚度≥85μm;
次龙骨:采用热镀锌方管或角钢,规格常用 60×40×2.5mm、50×50×2.5mm,镀锌层厚度≥85μm;
龙骨间距:主龙骨间距 1.2-1.8m,次龙骨间距 0.6-1.2m,需根据面板尺寸及荷载计算确定。
保温层:
材质:离心玻璃棉板(密度 48-64kg/m³)或岩棉板(密度≥100kg/m³);
性能:导热系数≤0.035W/(m・K),防火等级 A 级,厚度 50-100mm。
密封胶:
类型:中性硅酮耐候密封胶,符合《建筑用硅酮结构密封胶》(GB16776-2005);
性能:位移能力 ±25%,拉伸模量≤0.4MPa(23℃),固化时间 7-14 天。
四、施工技术要求与工艺流程
(一)施工技术要求
材料进场验收:
铝单板需提供质量证明文件(材质单、涂层检测报告等),进场时抽检厚度、平整度、涂层附着力(划格法测试,附着力≥2 级),不合格材料严禁使用;
龙骨及连接件需检查镀锌层厚度(采用涂层测厚仪检测)、尺寸偏差,偏差超出 ±1mm/m 的构件需退场;
密封胶需核对生产日期、保质期(未开封保质期 12 个月),进场后进行相容性试验,确保与铝单板、泡沫条等材料兼容。
基层条件:
建筑主体结构已完工,外立面预埋件位置偏差≤10mm,标高偏差≤5mm,若偏差超标,需采用后置埋板(化学锚栓固定)进行修复,后置埋板拉拔力≥15kN;
施工现场已搭设符合安全要求的脚手架或高空作业平台,作业面风速≤5 级(超出时停止高空作业)。
安装精度控制:
铝单板安装垂直度偏差≤3mm/2m,平面度偏差≤2mm/2m,接缝宽度偏差≤1mm;
龙骨安装垂直度偏差≤2mm/2m,水平度偏差≤1mm/2m,同一轴线龙骨标高偏差≤3mm。
(二)施工工艺流程
测量放线:以建筑主体结构轴线和 ±0.000 标高为基准,采用全站仪、水准仪建立幕墙施工控制网,弹出龙骨安装定位线、标高控制线,每 30m 设置一个控制点,偏差≤2mm。
预埋件修复与后置埋板安装:对主体结构预埋件进行检测,位置偏差超标的部位安装后置埋板,采用化学锚栓固定,完成后进行拉拔力检测,合格后方可进入下道工序。
龙骨安装:
先安装主龙骨:将主龙骨与连接件焊接(焊缝长度≥60mm,焊缝高度≥6mm),再通过连接件与预埋件 / 后置埋板固定,安装顺序从下至上,每安装 3 榀主龙骨,用临时支撑固定并复测垂直度;
后安装次龙骨:主龙骨验收合格后,按设计间距安装次龙骨,次龙骨与主龙骨采用螺栓连接(加尼龙垫片避免金属接触腐蚀),安装后复测水平度。
保温层施工:将保温板裁剪成适配尺寸,贴合于龙骨内侧,采用锚钉固定(每块保温板锚钉数量≥4 个),保温板接缝处用铝箔胶带密封,避免冷热桥产生。
铝单板安装:
按深化设计图纸对铝单板进行编号,从下至上、从左至右依次安装;
通过铝单板背部的角码与次龙骨连接,角码与次龙骨采用抽芯铆钉或螺栓固定,每块铝单板固定点≥4 个;
安装过程中实时调整面板位置,确保接缝顺直、平整度达标。
密封胶施工:
清理铝板接缝处的灰尘、油污,粘贴美纹纸(宽度 20mm)控制胶缝宽度;
采用挤胶枪匀速打注密封胶,胶缝深度≥15mm(采用泡沫条填充打底),打胶后用刮板沿 45° 角刮平,去除多余胶料,撕去美纹纸;
密封胶固化期间(7 天内)避免淋雨、碰撞,固化后进行淋水试验(水压 0.3MPa,持续 30 分钟),无渗漏为合格。
成品保护与验收:
铝单板安装完成后,撕去表面保护膜(安装后 15 天内完成,避免保护膜老化难以去除),用中性清洁剂清洗表面污渍;
组织监理、建设单位进行分项工程验收,核对安装精度、材料质量、密封防水效果等,验收合格后移交下道工序。