发布时间:2025-09-09 13:20
楼梯建筑剖面图(Staircase profile)
一、简介
在实际工程中,楼梯是使用最广泛的垂直交通设施,也是满足紧急疏散的重要交通构件。

二、楼梯的组成

楼梯结构图
楼梯主要由楼梯梯段、平台及栏杆扶手三部分组成。
三、楼梯的类型
1.按楼梯与建筑的所处的位置关系分为室内楼梯、室外楼梯;
2.按使用功能分为共用楼梯、服务楼梯、专用楼梯、专用疏散楼梯;
3.按主要承重结构承重构件部分所用材料分为钢筋混凝土楼梯、木楼梯、钢楼梯;
4.按楼梯、楼梯间形式分为开敞楼梯、敞开楼梯间、封闭楼梯间、防烟楼梯间。
四、楼梯的剖面表达
楼梯的剖面能完整、清晰的表达出房屋的层数、梯段数、步级数及楼梯类型及其结构形式。剖面图中应标注出楼梯垂直方向的各种尺寸,例如,楼梯平台下净空高度、栏杆扶手高度等。剖面图还必须符合结构、构造要求,例如平台梁的位置、圈梁的设置及门窗洞口的合理选择等。最后还应考虑剖面与平面相互对应及投影规律等。 |

楼梯剖面的表示法
五、楼梯剖面设计的常用尺寸
1.楼梯坡度与踏步尺寸
楼梯的坡度是指各级踏步前缘的假定连线与水平面之间的夹角。

楼梯坡度与踏步尺寸
常用楼梯的踏步尺寸
| 名称 | 住宅 | 学校、办公楼 | 剧院、会堂 | 医院(病人用) | 幼儿园 |
| 踏步高h/mm | 150-175 | 140-160 | 120-150 | 150 | 120-150 |
| 踏步宽h/mm | 260-300 | 280-340 | 300-350 | 300 | 260-300 |
注:2h+b=600~620或h+b=450
2.栏杆扶手的尺寸
栏杆是梯段的安全围护设施,其与人体尺度关系密切,因此应合理地确定其尺寸。栏杆净距不应大于110mm。
3.楼梯下的净空高度
为了保证人员行走安全不碰头,无压抑感,楼梯下应具有一定的净空高度。

楼梯下的净高控制
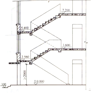
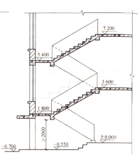
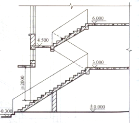
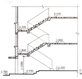
六、底层平台下净空设计
在大多数居住建筑中,常利用楼梯间作为出入口,当楼梯平台下作通道不能满足以上净高时,常采用以下解决办法:

1.将底层第一梯段加长,形成步数不等的梯段

2.第一梯段长度与步数不变,降低楼梯间室内地坪标高

3.将上述两种方法结合。一般在楼梯间进深有限,室内外地坪高差不能完全满足要求时采用。
4.底层采用直跑楼梯,直接上到二楼

七、楼梯设计实例
